羽村市羽加美1丁目 ホームエレベーター付き3階建6LDK

9,980万円

東京都羽村市羽加美1丁目

青梅線「羽村」駅徒歩17分

青梅線「小作」駅徒歩18分

価格
9,980万円
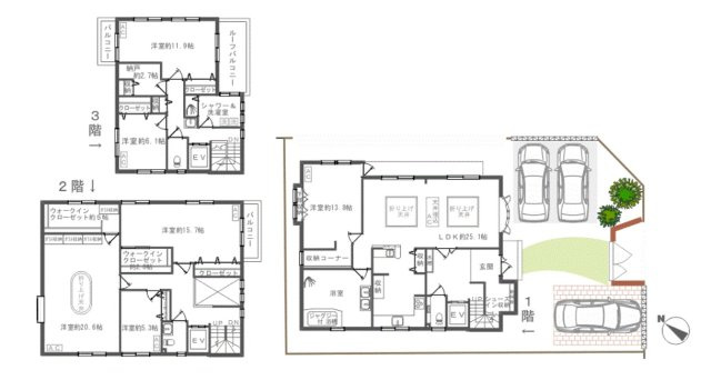
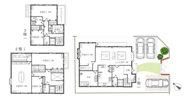
間取り
6LDK
土地面積
283.00㎡
所在地
東京都羽村市羽加美1丁目
交通

青梅線羽村」駅 徒歩17分

青梅線小作」駅 徒歩18分

建物面積
280.77㎡
築年月
2019年8月(築6年)

現地見学会

日時 2025年10月11日 ~  09:00 ~ 19:00
  • ※事前に必ずお問い合わせください
  • 休日、平日問わず即時ご対応させて頂きます!
    お仕事終わりの夜でもご見学可能ですのでお気軽にお問い合わせ下さいませ!

    ご来店、お迎え、現地集合などのご要望も承っております!

物件の特徴

  • TVモニタ付きインターホン

  • エレベーター

セールスポイント

【サンエフホーム】
●ホームエレベーター付×カースペース3台6LDK♪

担当者のコメント

藤田 公人

一生に一度あるかないかの大きなお買い物、お取引をする瞬間に寄り添う【責任】が私共にはございます。その大切な瞬間に携わらせて頂く【感謝】の気持ちを持ちながら本気、全力でサポートさせて頂きます!

基本情報

販売戸数
-
総戸数
-
間取り / 詳細
6LDK
向き
-
建物面積(坪数)
280.77㎡(84.93坪)
土地面積(坪数)
283.00㎡(85.60坪)
建ぺい率 /
容積率
60%/200%
築年月
2019年8月(築6年)
駐車場 / 月額
有 / 0円
土地権利
所有権
土地
(敷金 / 保証金)
- / -
建物構造
木造 / 3階建
傾斜地部分面積
-
路地状敷地
-
私道負担面積
-
セットバック
高圧線下面積
-
施工会社
-
用途地域
第一種中高層住居専用
地目 / 地勢
宅地 / -
接道状況
角地(南東 公道 6.0m)(北東 公道 6.0m)
国土法届出要否
不要
都市計画
市街化区域
総区画数 /
販売区画数
-/-
現況
空家
その他
法令上の制限
景観法/航空法
取引態様
一般媒介
引渡し
即時
取引条件の
有効期限
2026年03月26日

設備条件

設備条件
  • 閑静な住宅地 / 現地見学会 / ルーフバルコニー / 公営水道 / 公共下水 / エレベーター / 電気有 / 3面バルコニー / システムキッチン / 温水洗浄便座 / トイレ2ヶ所 / 浴室1坪以上 / ウォークインクロゼット / TVモニタ付インターホン
設備(その他)
    公営水道、公共下水、東京電力

その他

物件番号
98182482
管理コード
-
建築確認番号
-
情報更新日
2026年03月12日
次回更新予定日
2026年03月26日
取扱会社
  • 株式会社サンエフホーム
  • 東京都福生市牛浜91-1 ユニオンビル3F
  • TEL:042-513-6601
  • 東京都知事 (1) 第111723号
  • 公益社団法人 全日本不動産保証協会
    公益社団法人 不動産保証協会
    一般社団法人 全国不動産協会
備考
《おすすめポイント》

■2019年築の6LDK住宅!
■電動シャッター付カースペースは3台!
■敷地は283㎡ある角地!
■屋上バルコニーからは花火も望めます!
■収納力も豊富!
■ホームエレベーター付き!
■2世帯住宅としてもご検討ください!

支払いシミュレーション

月々の支払額
購入希望物件価格
万円
頭金
万円
金利
%
返済額(ボーナス1回分)
万円
返済期間

※ボーナスは自動で年2回分で計算されます。

近隣の物件

  1. 羽村市羽西1丁目中古戸建

    羽村市羽西1丁目

    4LDK (115.84㎡)

    2,749万円

  2. 羽村市羽加美2丁目 ルーフバルコニーと地下室のある5LDKの邸宅

    羽村市羽加美2丁目

    5LDK (124.70㎡)

    2,980万円

  3. 羽村市緑ヶ丘4丁目 全7棟

    羽村市緑ヶ丘4丁目

    4LDK (95.84㎡)

    3,290万円

  4. 羽村市双葉町2丁目 全1棟

    羽村市双葉町2丁目

    4LDK (100.60㎡)

    3,780万円

よく見られている物件

  1. 武蔵村山市三ツ木5丁目 中古戸建

    武蔵村山市三ツ木5丁目

    4LDK (93.75㎡)

    1,480万円

  2. 羽村市羽中2丁目の中古一戸建

    羽村市羽中2丁目

    3LDK (99.36㎡)

    2,780万円

  3. 昭島市拝島町5 中古戸建

    昭島市拝島町5丁目

    4LDK (89.84㎡)

    2,699万円

  4. 昭島市田中町1丁目 中古戸建

    昭島市田中町1丁目

    3LDK (81.30㎡)

    2,999万円

羽村市羽加美1丁目 ホームエレベーター付き3階建6LDK

羽村市羽加美1丁目 ホームエレベーター付き3階建6LDK

9,980万円

-

6LDK(280.77㎡)

お気軽にお問い合わせください

無料お問い合わせ

株式会社サンエフホーム

042-513-6601

9:30~18:30

(休:水曜日)