羽村市栄町1丁目 全1棟 1号棟

4,780万円

東京都羽村市栄町1丁目

青梅線「小作」駅徒歩8分

青梅線「羽村」駅徒歩30分

価格
4,780万円
間取り
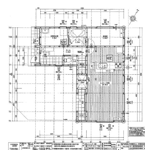
4LDK+S(納戸)
土地面積
131.25㎡
所在地
東京都羽村市栄町1丁目
交通

青梅線小作」駅 徒歩8分

青梅線羽村」駅 徒歩30分

建物面積
101.24㎡
築年月
2026年2月(予定)

現地見学会

日時 2025年11月7日 ~  09:00 ~ 19:00
  • ※事前に必ずお問い合わせください
  • 休日、平日問わず即時ご対応させて頂きます!
    お仕事終わりの夜でもご見学可能ですのでお気軽にお問い合わせ下さいませ!

    ご来店、お迎え、現地集合などのご要望も承っております!

物件の特徴

  • 室内洗濯機置場

  • TVモニタ付きインターホン

  • カウンターキッチン

  • 浴室乾燥機

セールスポイント

【サンエフホーム安心10年保証付】
●駅徒歩8分角地×敷地39坪4SLDK

担当者のコメント

藤田 公人

一生に一度あるかないかの大きなお買い物、お取引をする瞬間に寄り添う【責任】が私共にはございます。その大切な瞬間に携わらせて頂く【感謝】の気持ちを持ちながら本気、全力でサポートさせて頂きます!

基本情報

販売戸数
-
総戸数
-
間取り / 詳細
4LDK+S(納戸)
LDK 16.0帖 1室/S 4.0帖 1室/洋室 7.5帖 1室/洋室 6.7帖 1室/洋室 4.5帖 1室/洋室 3.7帖 1室
向き
-
建物面積(坪数)
101.24㎡(30.62坪)
土地面積(坪数)
131.25㎡(39.70坪)
建ぺい率 /
容積率
70%/200%
築年月
2026年2月(予定)
駐車場 /
月額料金
有 0円
土地権利
所有権
土地
(敷金 / 保証金)
- / -
建物構造
木造 / 2階建
傾斜地部分面積
-
路地状敷地
-
私道負担面積
331.00㎡
セットバック
高圧線下面積
-
施工会社
-
用途地域
第一種中高層住居専用
地目 / 地勢
宅地 / -
接道状況
角地(南東 私道 4.0m)(南西 公道 6.0m)
国土法届出要否
不要
都市計画
市街化区域
総区画数 /
販売区画数
-/-
現況
未完成
その他
法令上の制限
景観法/航空法/準防火地域
取引態様
仲介
引渡し
2026年2月中旬
取引条件の
有効期限
2026年01月20日

設備条件

設備条件
  • 閑静な住宅地 / 建設住宅性能評価書付 / 現地見学会 / 室内洗濯機置場 / 都市ガス / 公営水道 / 公共下水 / 電気有 / 駐車2台可 / 耐震構造 / システムキッチン / カウンターキッチン / 浴室乾燥機 / 温水洗浄便座 / トイレ2ヶ所 / 浴室1坪以上 / 床下収納 / TVモニタ付インターホン / 複層ガラス
設備(その他)
    公営水道、公共下水、東京電力

その他

物件番号
98877492
管理コード
-
建築確認番号
第25UDI1W建07436号
情報更新日
2026年01月06日
次回更新予定日
2026年01月20日
取扱会社
  • 株式会社サンエフホーム
  • 東京都福生市牛浜91-1 ユニオンビル3F
  • TEL:042-513-6601
  • 東京都知事 (1) 第111723号
  • 公益社団法人 全日本不動産保証協会
    公益社団法人 不動産保証協会
    一般社団法人 全国不動産協会
備考
《おすすめポイント》

■耐震性など7項目で最上等級取得
■広々した前面道路で駐車もラクラク
■半年、2年、5年、10年目に安心の無料定期点検を実施
■雨の日にも便利な浴室乾燥機付き
■全居室に収納がある使い勝手の良い4SLDKの間取り
■フラット35S金利Aプラン利用可

即日ご案内可能です!お気軽にお問い合わせ下さい!

羽村市栄町1丁目 全1棟の他の物件

  1. 1号棟

    4LDK (86.94㎡)

    3,690万円(140.36万円/坪)

支払いシミュレーション

月々の支払額
9.6
購入希望物件価格
万円
頭金
万円
金利
%
返済額(ボーナス1回分)
万円
返済期間

※ボーナスは自動で年2回分で計算されます。

近隣の物件

  1. 羽村市羽西1丁目中古戸建

    羽村市羽西1丁目

    4LDK (115.84㎡)

    2,999万円

  2. 羽村市羽加美2丁目 ルーフバルコニーと地下室のある5LDKの邸宅

    羽村市羽加美2丁目

    5LDK (124.70㎡)

    3,480万円

  3. 羽村市羽加美1丁目 ホームエレベーター付き3階建6LDK

    羽村市羽加美1丁目

    6LDK (280.77㎡)

    9,980万円

  4. 羽村市小作台3丁目 全1棟

    羽村市小作台3丁目

    2SLDK (87.06㎡)

    3,280万円

羽村市栄町1丁目 全1棟

羽村市栄町1丁目 全1棟

4,780万円

-

4LDK+S(納戸)(101.24㎡)

お気軽にお問い合わせください

無料お問い合わせ

株式会社サンエフホーム

042-513-6601

9:30~18:30

(休:水曜日)